Home
Über Uns
Produkte
Standartprodukte
Sonderanfertigung
Reveals and Moldings Profiles
Ceiling Access Panels
Projekte
Karriere
Kontakt
EN | DE
Home
Über Uns
Produkte
Standartprodukte
Sonderanfertigung
Reveals and Moldings Profiles
Ceiling Access Panels
Projekte
Karriere
Kontakt
hol dir ein angebot
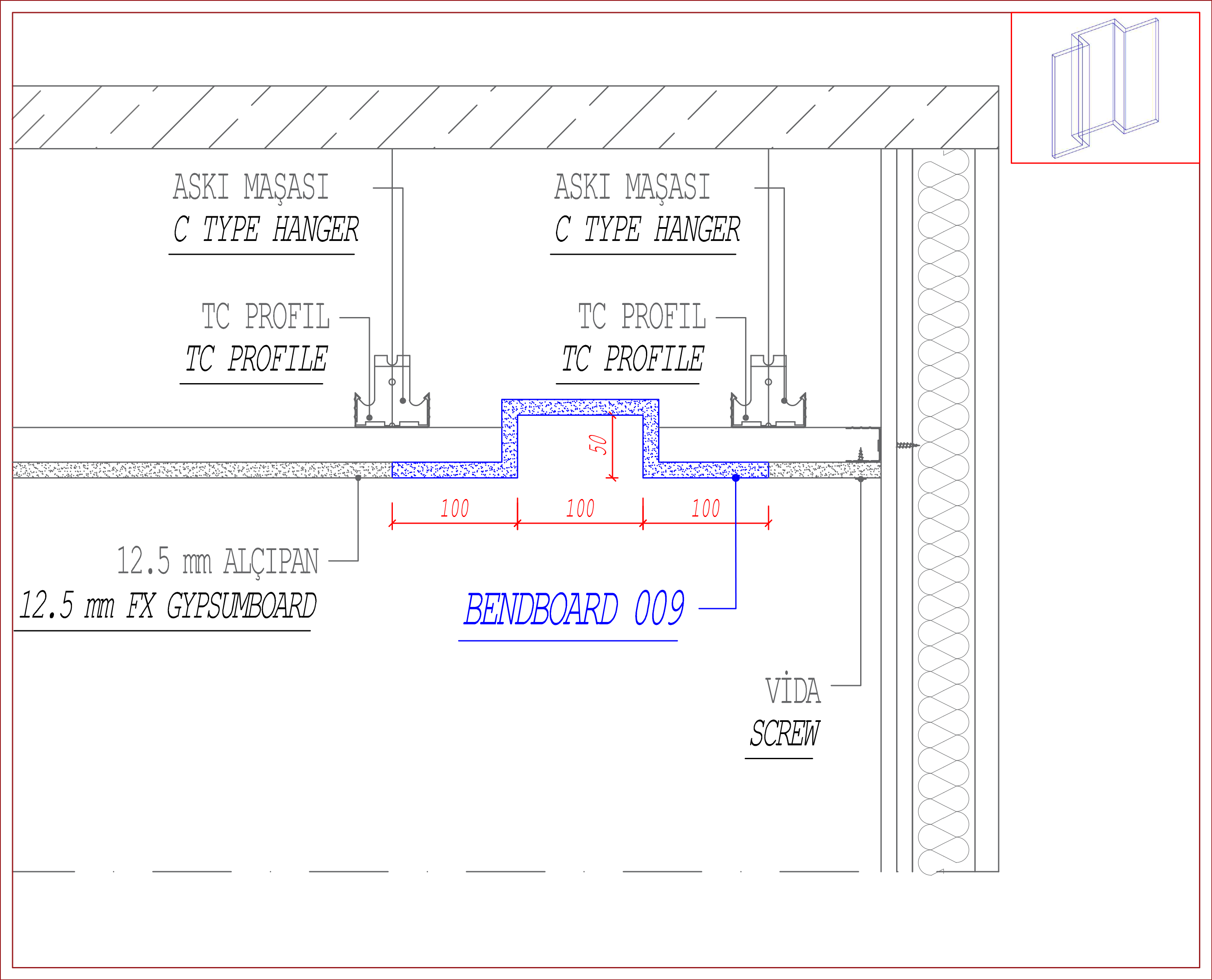
BendBoard 009
Home
Produkte
Standartprodukte
BendBoard 009
BendBoard 009
BendBoard 009
Technische Implementierungsdatei herunterladen
Alle Produkte